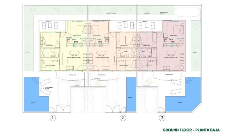
Exclusieve nieuwbouwwoningen met privézwembad in Pilar de la Horadada, op 2 km van het strand Exclusief project vlak bij het strand aan de Costa Blanca Ontdek dit exclusieve woonproject met slechts zes moderne bungalows in Pilar de la Horadada, een charmant kustplaatsje aan de zuidelijke Costa Blanca. Op slechts 2 km van de prachtige zandstranden van Torre de la Horadada biedt dit project een perfecte mix van eigentijds design, comfort en een toplocatie. Deze woningen liggen in een centrale en goed bereikbare woonwijk, op loopafstand van het stadscentrum, waar u een breed scala aan winkels, restaurants, cafés en alle essentiële voorzieningen vindt. Pilar de la Horadada staat bekend om zijn traditionele Spaanse sfeer, gastvrije gemeenschap en ontspannen mediterrane levensstijl. Moderne bungalows met eigen buitenruimtes Alle woningen beschikken over drie slaapkamers en twee badkamers, waaronder een hoofdslaapkamer met eigen badkamer. Kopers kunnen kiezen tussen indelingen op de begane grond en de bovenste verdieping, die elk unieke mogelijkheden voor buitenleven bieden. Bungalows op de begane grond beschikken over een privétuin, een privézwembad en een parkeerplaats op het perceel, ideaal voor wie op zoek is naar ruimte en gemakkelijke toegang. Woningen op de bovenste verdieping bieden een privéterras en een dakterras met solarium en privézwembad, evenals een eigen parkeerplaats op de begane grond. Het interieur is ontworpen met open woonruimtes, waarbij keuken, eetkamer en woonkamer zijn gecombineerd om het natuurlijke licht te maximaliseren en een naadloze doorstroming door de woning te creëren. Hoogwaardige afwerking en moderne voorzieningen Deze nieuwbouwwoningen zijn gebouwd met hoogwaardige materialen en afwerkingen. Kenmerken zijn onder meer gladde gepleisterde muren, porseleinen vloeren door het hele huis en inbouwkasten. De moderne open keukens zijn volledig ingericht en voorzien van apparatuur. Bijkomende voorzieningen zijn onder meer voorinstallatie voor kanaalairconditioning, een aerothermisch systeem voor energiezuinig warm water, een LED-verlichtingspakket, elektrische rolluiken en een video-intercomsysteem. De badkamers zijn volledig ingericht met wastafels en spiegels, en bieden zowel stijl als functionaliteit. Toplocatie dicht bij stranden, golfbanen en voorzieningen Pilar de la Horadada biedt een ideale locatie voor zowel permanente bewoning als vakantiehuizen. De nabijgelegen stranden van Torre de la Horadada liggen op ongeveer 2 km afstand en staan bekend om hun gouden zand en heldere water. Andere belangrijke bezienswaardigheden zijn onder meer Lo Romero Golf op 6 km, het winkelcentrum La Zenia Boulevard op 15 km, de luchthaven Murcia Corvera op 40 km en de luchthaven van Alicante op 55 km. Het gebied profiteert ook van uitstekende wegverbindingen naar nabijgelegen kustplaatsen, jachthavens en recreatiefaciliteiten. Ideale investeringskans aan de Costa Blanca Dit exclusieve project biedt een zeldzame kans om een stijlvolle nieuwbouwwoning te bezitten op een zeer gewilde locatie dicht bij de zee. Neem vandaag nog contact met ons op voor meer informatie of om een bezichtiging te regelen en uw nieuwe woning in Pilar de la Horadada veilig te stellen.