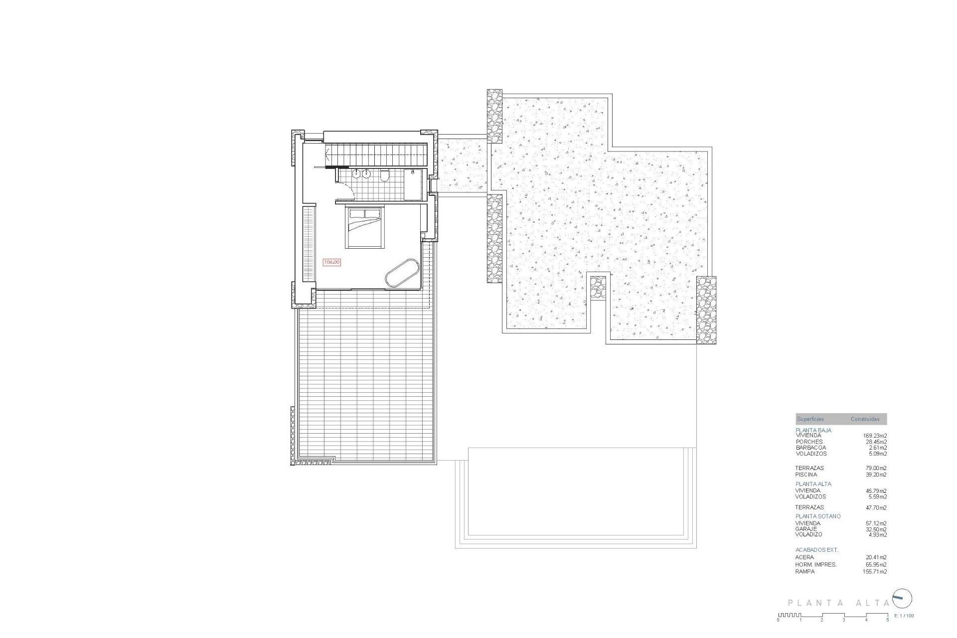
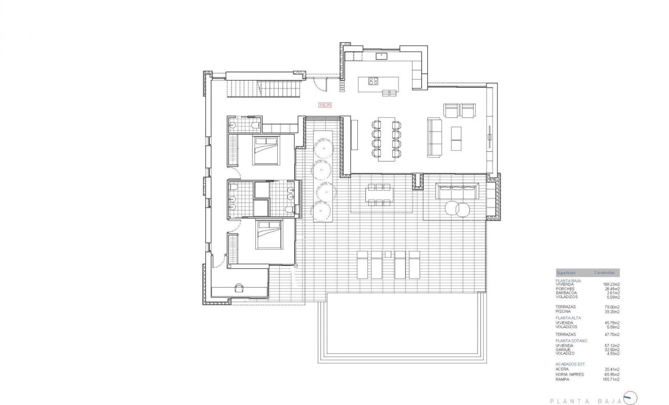
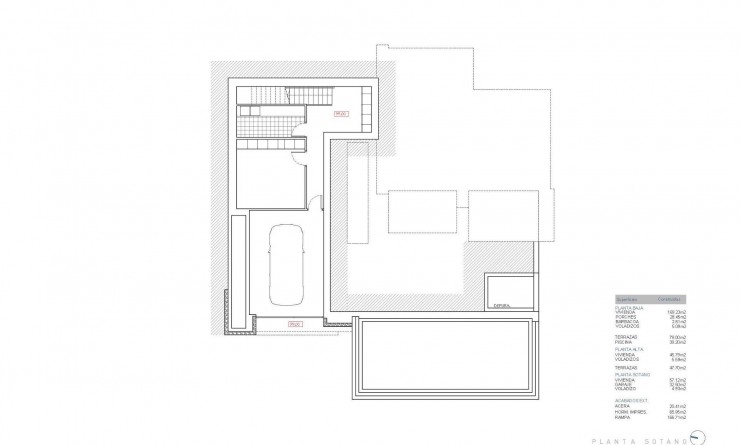
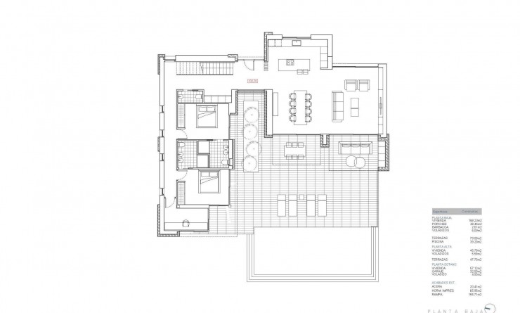
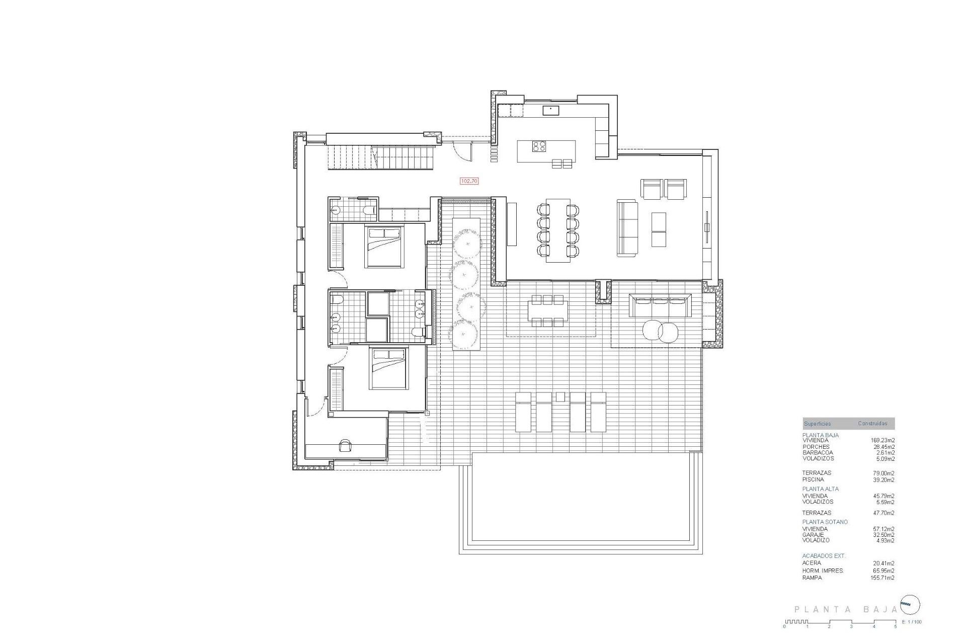
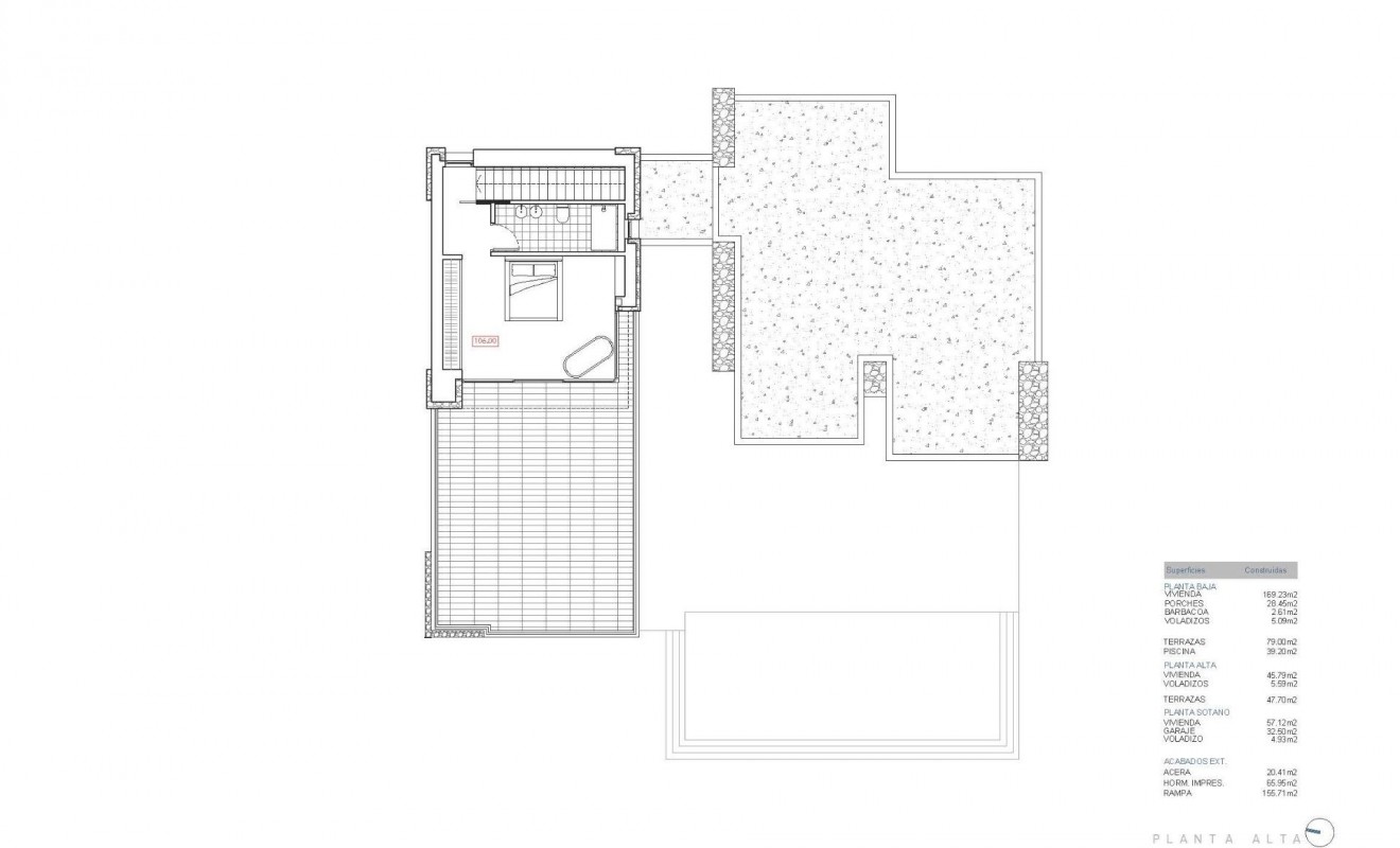
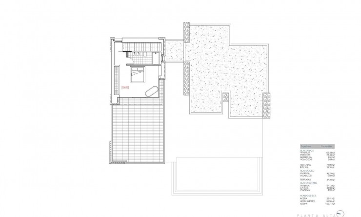
Luxe nieuwbouwwoning met uitzicht op zee in San Jaime, Benissa Exclusieve woning op een toplocatie aan de Costa Blanca Deze uitzonderlijke nieuwbouwwoning ligt in de prestigieuze wijk San Jaime in Benissa en biedt uitzicht op zee, privacy en een eigentijds mediterraan ontwerp op slechts 2 km van het strand. De woning ligt in een rustige doodlopende straat en garandeert rust, terwijl het toch dicht bij essentiële voorzieningen en recreatiefaciliteiten aan de noordelijke Costa Blanca ligt. San Jaime is een van de meest gewilde woonwijken in Benissa Costa, bekend om zijn elegante villa's, groene omgeving en de nabijheid van golfbanen, stranden en charmante kustplaatsjes. De villa staat op een royaal perceel van 1021 m2 met een totale bebouwde oppervlakte van 351 m2 en is momenteel in aanbouw, waarbij de structuur al voltooid is. Doordacht ontworpen over drie niveaus Deze moderne villa is verdeeld over drie zorgvuldig geplande verdiepingen, waarbij functionaliteit wordt gecombineerd met verfijnde esthetiek. Het entreeniveau omvat een privégarage, een wasruimte en een technische ruimte, waardoor praktische ruimtes discreet in het totale ontwerp zijn geïntegreerd. Op de begane grond sluit de open woon- en eetkamer naadloos aan op een volledig uitgeruste keuken, waardoor een lichte en uitnodigende sfeer ontstaat die ideaal is voor het dagelijks leven en entertainment. Op deze verdieping bevinden zich ook twee ruime slaapkamers, elk met een eigen badkamer. Het buitenterras en het privézwembad breiden de leefruimte uit en bieden een ideale omgeving om te ontspannen, te dineren en te genieten van het mediterrane klimaat met prachtig uitzicht op zee. De bovenverdieping is bestemd voor de master suite, compleet met eigen badkamer en directe toegang tot een groot open terras waar u kunt genieten van een panoramisch uitzicht en rustige zonsondergangen. Hoogwaardige specificaties en modern comfort De villa wordt opgeleverd met hoogwaardige afwerkingen en geavanceerde systemen voor maximaal comfort en efficiëntie, waaronder: Volledig ingerichte keuken met apparatuur Designbadkamers met meubilair Elektrische zonwering Video-intercom en alarmsysteem Aerothermisch systeem voor warm water en vloerverwarming Volledig geïnstalleerde airconditioning met luchtkanalen Toplocatie nabij golf, stranden en voorzieningen De woning ligt naast Club de Golf Ifach en dicht bij de populaire supermarkt Pepe La Sal. De kustlijn en baaien van Benissa Costa liggen op slechts 2 km afstand. Afstanden tot belangrijke bezienswaardigheden Strand 2 km Moraira 5 km Calpe 8 km Club de Golf Ifach 0,5 km Luchthaven Alicante 80 km Luchthaven Valencia 110 km Verzeker uzelf van uw droomvilla in Benissa Costa Deze uitstekende villa combineert moderne architectuur, uitzicht op zee en een bevoorrechte locatie in San Jaime. Neem vandaag nog contact met ons op voor meer informatie of om een privébezichtiging te regelen van deze exclusieve nieuwbouwwoning in Benissa.