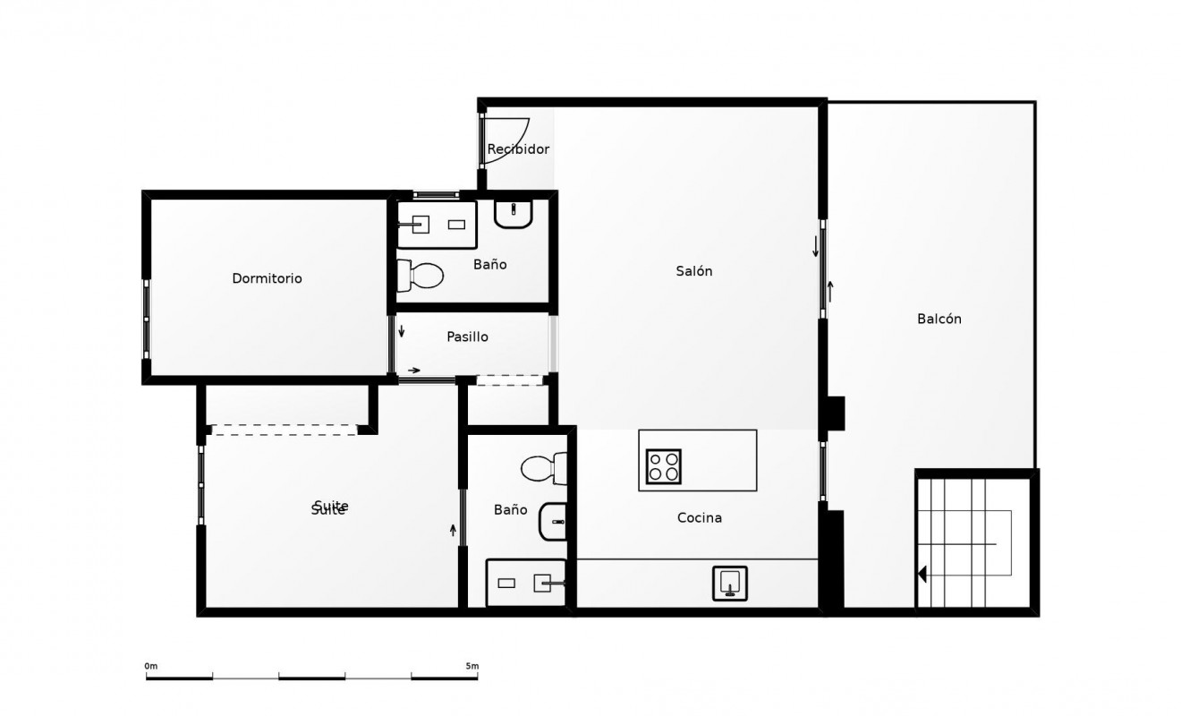
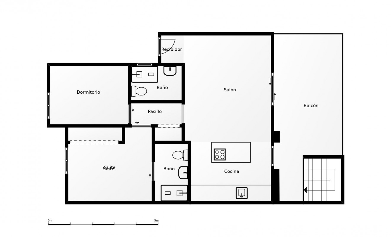
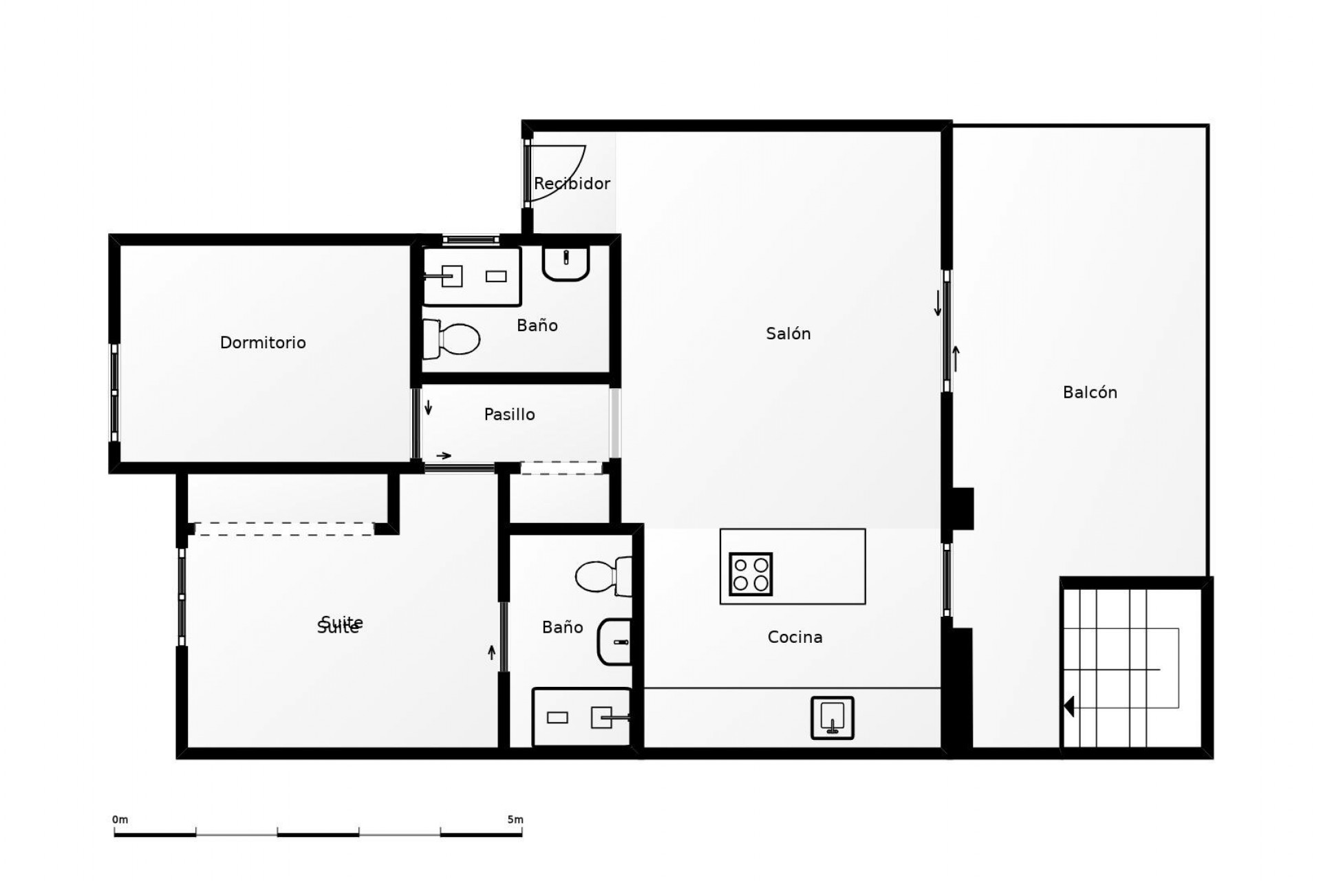
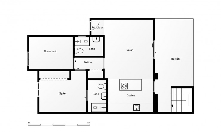
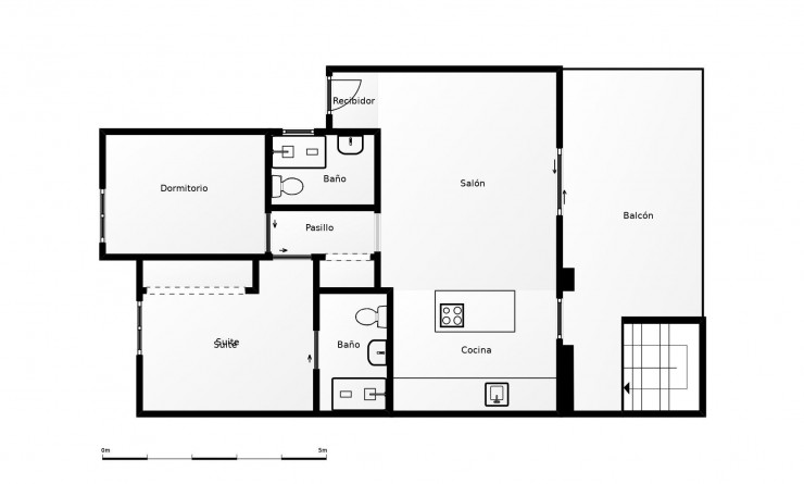
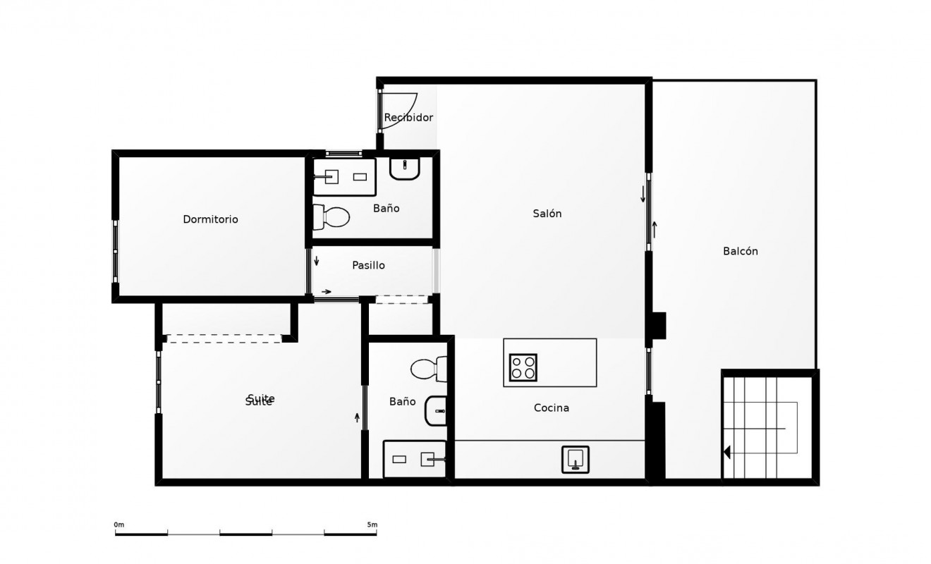
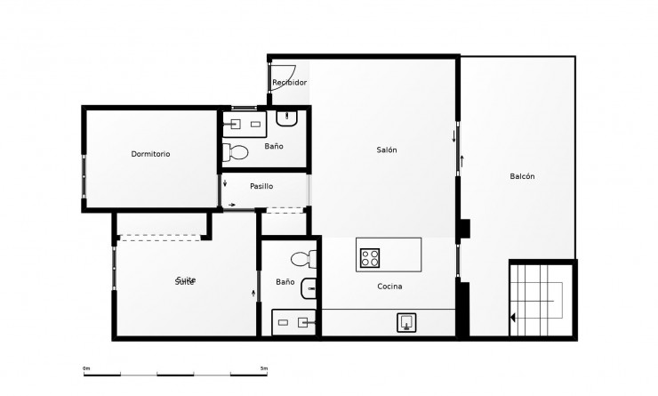
Ontdek deze prachtige bungalow op de bovenste verdieping, gelegen in de prestigieuze wijk PAU 26, Orihuela Costa, waar modern design, comfort en levenskwaliteit perfect samenkomen.~~Deze zo goed als nieuwe woning, gebouwd in 2022, beschikt over 76 m2 bebouwde oppervlakte, een functionele indeling en een uitstekende zuidgerichte ligging, waardoor u de hele dag kunt genieten van natuurlijk licht.~~Via de straat bereikt u een privé en exclusief wooncomplex met slechts 24 woningen, wat rust, privacy en een aangename woonomgeving garandeert. Bij binnenkomst wordt u verwelkomd door een lichte en ruime woon-eetkamer met een moderne open keuken. Vanuit de woonkamer heeft u toegang tot een balkon van 12 m2, voorzien van een elektrisch zonnescherm en kunstgras, ideaal om het hele jaar door van het buitenleven te genieten.~De woning beschikt daarnaast over een wasruimte, twee ruime tweepersoonsslaapkamers en twee complete badkamers, beide met vloerverwarming voor optimaal comfort.~~Vanaf het balkon leidt een privétrap naar het hoogtepunt van de woning: een indrukwekkend privé dakterras (solarium) van ca. 71 m2, afgewerkt met kunstgras en zonneschermen, perfect voor een exclusieve chill-out ruimte of ontspannen momenten onder de mediterrane zon.~~Tot de extra’s behoren porseleinen vloeren, horren voor alle ramen, veiligheidsdeur, een elektrisch zonnescherm op het balkon en een handmatig zonnescherm op de pergola van het solarium.~~De woning wordt verkocht inclusief privé parkeerplaats en afgesloten berging, wat extra gemak en opslagruimte biedt.~~Het wooncomplex beschikt over een prachtig gemeenschappelijk zwembad, zeer goed onderhouden groene zones en hoogwaardige gemeenschappelijke ruimtes – pure luxe.~~Gelegen op slechts 3,5 km van de zee, bevindt de woning zich dicht bij bekende stranden zoals La Zenia en Playa Flamenca, beroemd om hun kristalheldere water en uitstekende voorzieningen.~~Dankzij de nabijheid van prestigieuze golfbanen is deze woning ook een zeer gewilde vakantiewoning met uitstekend verhuurpotentieel.~~ Een woning die staat voor exclusiviteit, comfort en mediterrane levensstijl.~Een unieke kans – neem vandaag nog contact met ons op.Prijs: €349.000~Belastingen en aankoopkosten niet inbegrepen (volgens de geldende regelgeving). Een overzicht van de bijkomende kosten wordt verstrekt vóór de reservering.