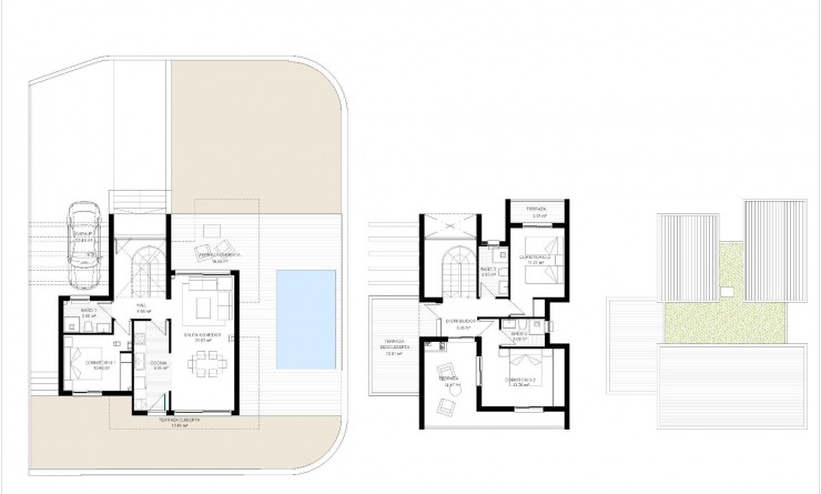
Nieuwbouw van 7 villa's in La Nucía Ontdek deze prachtige nieuwbouwvilla's in La Nucía, elk met privézwembad en parkeerplaats. Deze onafhankelijke villa's hebben 3 slaapkamers en 3 badkamers, verdeeld over twee verdiepingen. Op de begane grond bevindt zich een van de slaapkamers, die gemakkelijk toegankelijk is. Op de eerste verdieping biedt een terras van 14 m² een helder, onbelemmerd uitzicht en sommige woningen hebben uitzicht op zee. Modern wonen in een besloten en veilige omheinde gemeenschap Dit exclusieve project is volledig omheind en de villa's zijn toegankelijk via een privéweg, zodat de bewoners verzekerd zijn van optimale privacy en veiligheid. Elke villa is ontworpen met modern comfort in het achterhoofd, perfect om het hele jaar door te wonen of voor een ontspannen vakantieverblijf. Toplocatie in La Nucía Deze villa's liggen in een gerenommeerde woonwijk van La Nucía en worden omringd door essentiële dagelijkse voorzieningen, wat het leven gemakkelijk en aangenaam maakt. Op slechts 6 km van de populaire kustbestemmingen Benidorm en El Albir hebben bewoners gemakkelijk toegang tot prachtige stranden, een verscheidenheid aan entertainmentopties en een bruisende gastronomische scene. Nabijheid van belangrijke bezienswaardigheden Benidorm: 6 km Strand El Albir: 6 km Luchthaven Alicante: 60 km Winkelcentra: 5 km Golfbanen: 10 km Geniet van het mediterrane klimaat Met een warm, mild klimaat en veel zonnige dagen het hele jaar door is La Nucía een ideale locatie, of je nu een vakantiehuis of een permanente verblijfplaats plant. Ervaar het beste van de Costa Blanca in deze prachtige villa's, perfect gelegen voor zowel ontspanning als avontuur.