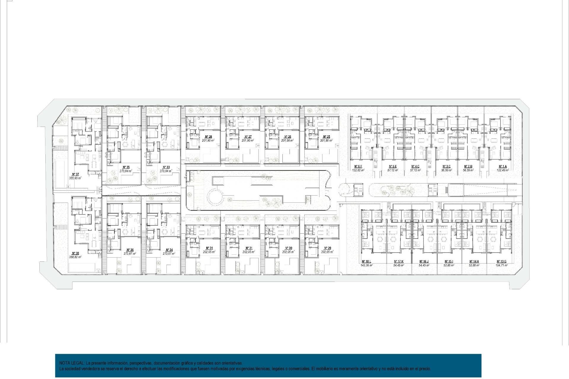
Exclusieve villa's en bungalows aan de Costa Cálida - Design, comfort en een bevoorrechte locatie Een project dat privacy en gemeenschapsleven combineert Ontdek een nieuw woonconcept aan de Costa Cálida, ontworpen voor wie op zoek is naar de perfecte combinatie van privacy, comfort en sociaal leven. Dit exclusieve complex biedt vrijstaande villa's en bungalows, met toegang tot ruime gemeenschappelijke ruimten en een gemeenschappelijk zwembad, waardoor je het beste van twee werelden krijgt: de rust van een privéwoning en het comfort van gedeelde ruimten om van te genieten met vrienden, familie en buren. Alle woningen zijn voorzien van een parkeerplaats en berging in de kelder, waardoor veiligheid en gemak voor de bewoners gegarandeerd is. Modern ontwerp en persoonlijke opties Dit project biedt een breed scala aan woningen voor verschillende behoeften en levensstijlen: Bungalows op de begane grond met privétuinen tot 122 m². Bungalows op de bovenste verdieping met grote terrassen en privé solarium. Vrijstaande villa's met één of twee verdiepingen, met percelen van 201 tot 356 m² en verschillende indelings- en afwerkingsopties. Elke woning is ontworpen om het natuurlijke licht te maximaliseren, waardoor ruime en uitnodigende ruimtes ontstaan. De master suite is zorgvuldig ontworpen om privacy en comfort te garanderen, door het slaapgedeelte volledig te scheiden van de badkamer, waardoor onderbrekingen van licht of geluid tijdens de nacht worden voorkomen. Kwaliteit en duurzaamheid in elk detail Deze woningen zijn gebouwd met materialen van hoge kwaliteit en uitgerust met duurzame technologieën, zoals zonnepanelen en aerothermie, om de energie-efficiëntie te verbeteren. Opmerkelijke kenmerken: Gemotoriseerde rolluiken in slaapkamers. Gepantserde voordeur voor meer veiligheid. Pre-installatie van gekanaliseerde airconditioning. Moderne badkamers met scheidingswanden van gehard glas en hangend meubilair met LED-spiegel. Strategische locatie in Los Alcázares Dit complex ligt op slechts een paar meter van de prestigieuze Serena golfbaan en op 1 km van de stranden van de Mar Menor. Het geniet van een bevoorrechte locatie in Los Alcázares, een van de meest veelbelovende gebieden van de Costa Cálida. Bovendien maakt de gemakkelijke toegang tot de snelweg AP-7 een snelle verbinding met andere bestemmingen in de regio mogelijk en vergemakkelijkt het de toegang tot essentiële voorzieningen zoals supermarkten, sportcentra, scholen en apotheken. Afstanden naar bezienswaardigheden La Serena Golf - 1 km (2 minuten met de auto). Mar Menor Beach - 1 km (2 minuten met de auto of 10 minuten lopen). Luchthaven Murcia - 35 km (30 minuten met de auto). Haven van Cartagena - 22 km (20 minuten met de auto). Plaatselijk winkelcentrum - 3 km (5 minuten met de auto). Een mediterrane levensstijl met een hoge winstgevendheid Dit project is niet alleen een uitstekende optie om te genieten van de mediterrane levensstijl, maar het is ook een veilige investering in een groeiend gebied. Mis deze unieke kans niet. Neem vandaag nog contact met ons op voor meer informatie en om je ideale huis aan de Costa Cálida te reserveren.