Villa neuve clé en main avec piscine privée à seulement 500 m de la plage à San Pedro del Pinatar
Nouvelle construction exclusive dans un emplacement privilégié sur la Costa Cálida
Découvrez cette villa neuve exceptionnelle à San Pedro del Pinatar, à seulement 500 mètres des plages de sable de Villananitos. Cette propriété clé en main offre un mélange parfait entre design moderne, finitions luxueuses et emplacement imbattable sur la très prisée Costa Cálida en Espagne. Que vous recherchiez une maison de vacances, une résidence principale ou un investissement à haut rendement, cette villa répondra à toutes vos attentes.
Aménagement spacieux et élégance moderne
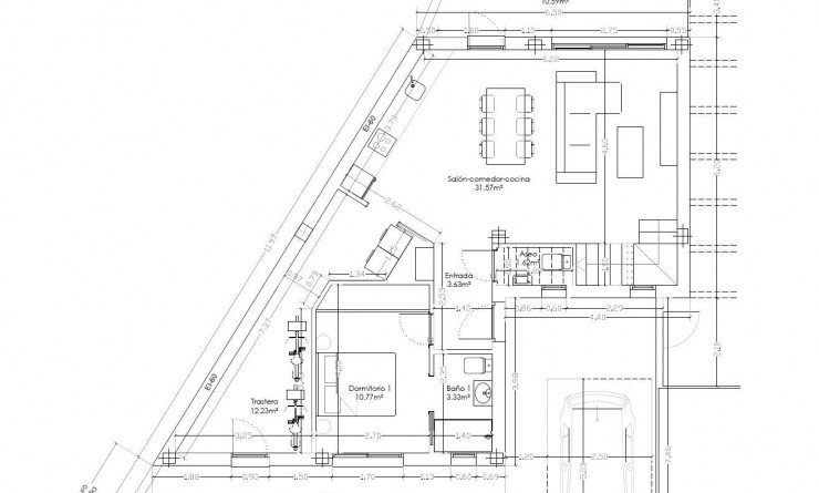
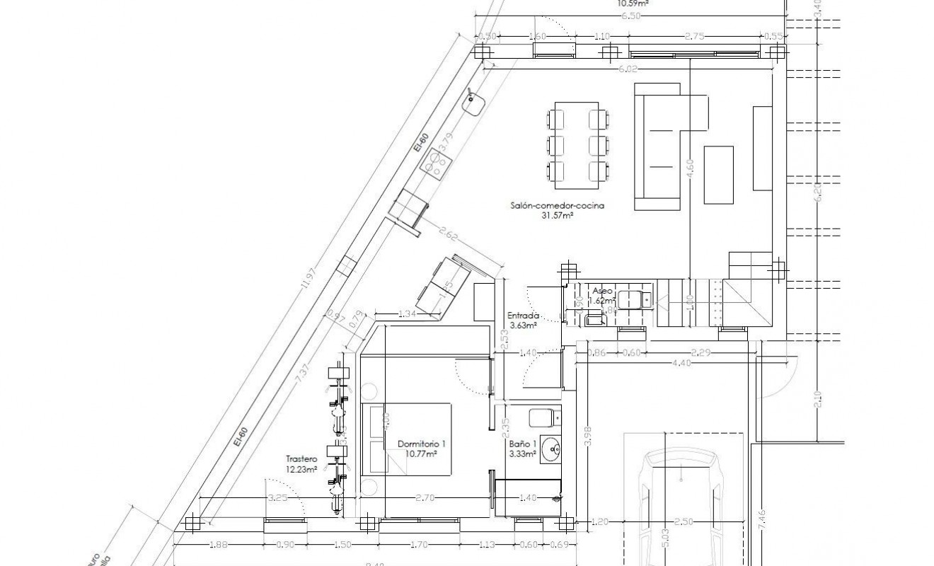
Située sur un terrain de 240 m², cette villa offre une surface construite de 145 m² répartis sur deux niveaux. Elle comprend :
Trois chambres spacieuses, dont une au rez-de-chaussée avec salle de bains attenante
Deux salles de bains complètes avec douches à l'italienne et matériaux haut de gamme
Un WC invités au rez-de-chaussée
Cuisine ouverte avec appareils électroménagers Bosch haut de gamme
Grand salon lumineux avec vue directe sur la terrasse de la piscine
Quatre terrasses idéales pour la vie en plein air et les réceptions
Chaque espace est conçu pour le confort, l'élégance et la fonctionnalité, avec une excellente isolation et une climatisation centralisée pour une température agréable toute l'année.
Piscine privée et vie en plein air
Profitez pleinement de la vie méditerranéenne avec votre propre piscine privée, une douche extérieure et plusieurs terrasses pour prendre le soleil, lire ou dîner en plein air. L'éclairage extérieur moderne rehausse l'ambiance, rendant cet endroit parfait pour des soirées relaxantes sous les étoiles.
Il y a également un parking privé sur le terrain et une grande buanderie avec des branchements pour un lave-linge, un sèche-linge et un système aérothermique économe en énergie pour l'eau chaude.
Emplacement stratégique sur la côte
Situé à San Pedro del Pinatar, une charmante ville connue pour son atmosphère espagnole authentique et ses équipements modernes :
Plage de Villananitos - 0,5 km
Centre commercial Dos Mares - 3 km
Parcours de golf de Roda - 7 km
Port de plaisance de Lo Pagán - 1,5 km
Centre-ville de Murcie - 47 km
Cartagena – 34 km
Cet emplacement privilégié offre un accès facile aux plages, aux terrains de golf, aux commerces, aux restaurants et aux principaux réseaux de transport, ce qui en fait un lieu idéal pour les loisirs et la vie quotidienne.
Ne manquez pas cette opportunité clé en main
Si vous rêvez d'une maison élégante et prête à emménager près de la mer, cette villa à San Pedro del Pinatar est le choix idéal.
Contactez-nous dès aujourd'hui pour organiser une visite ou demander plus d'informations.