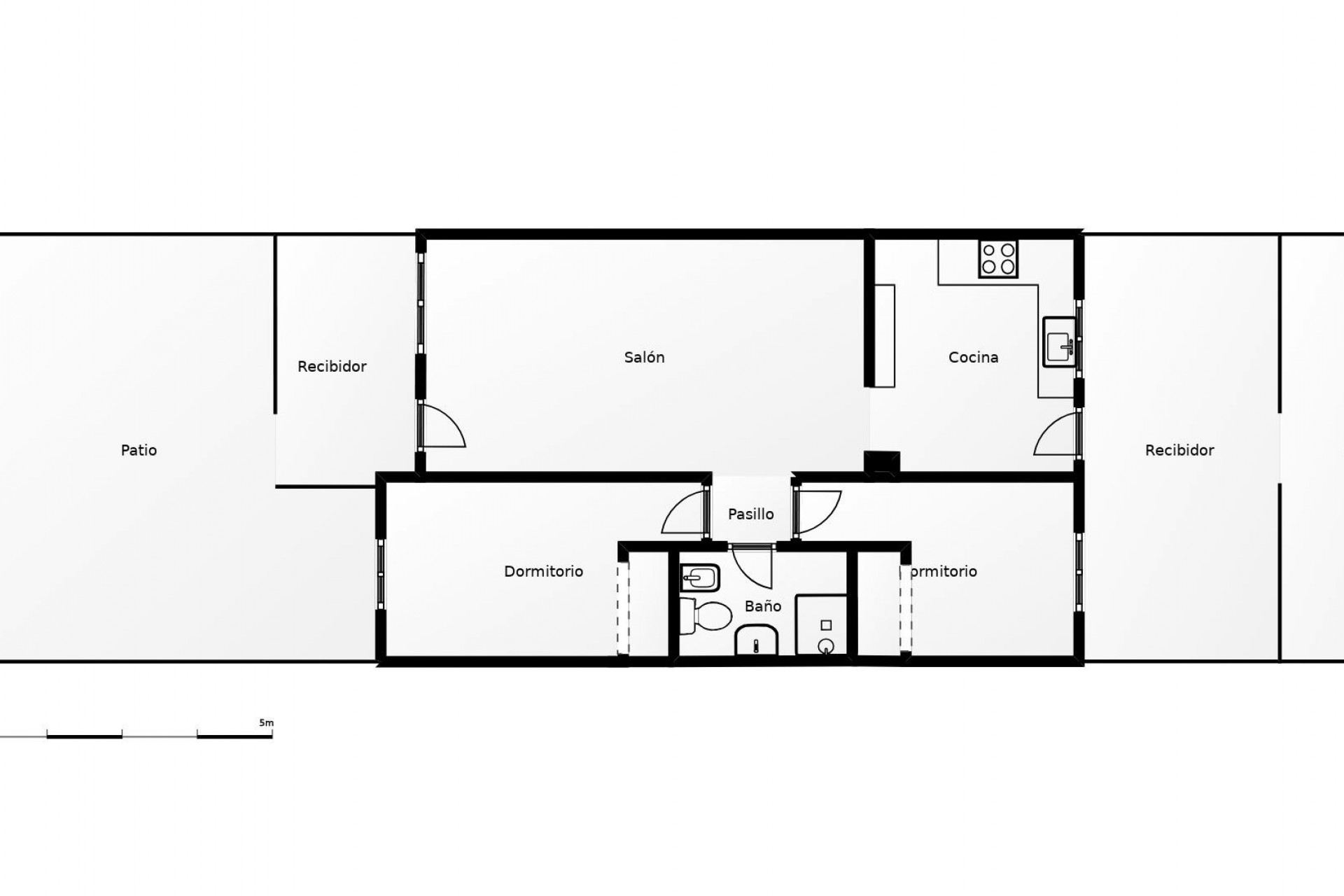
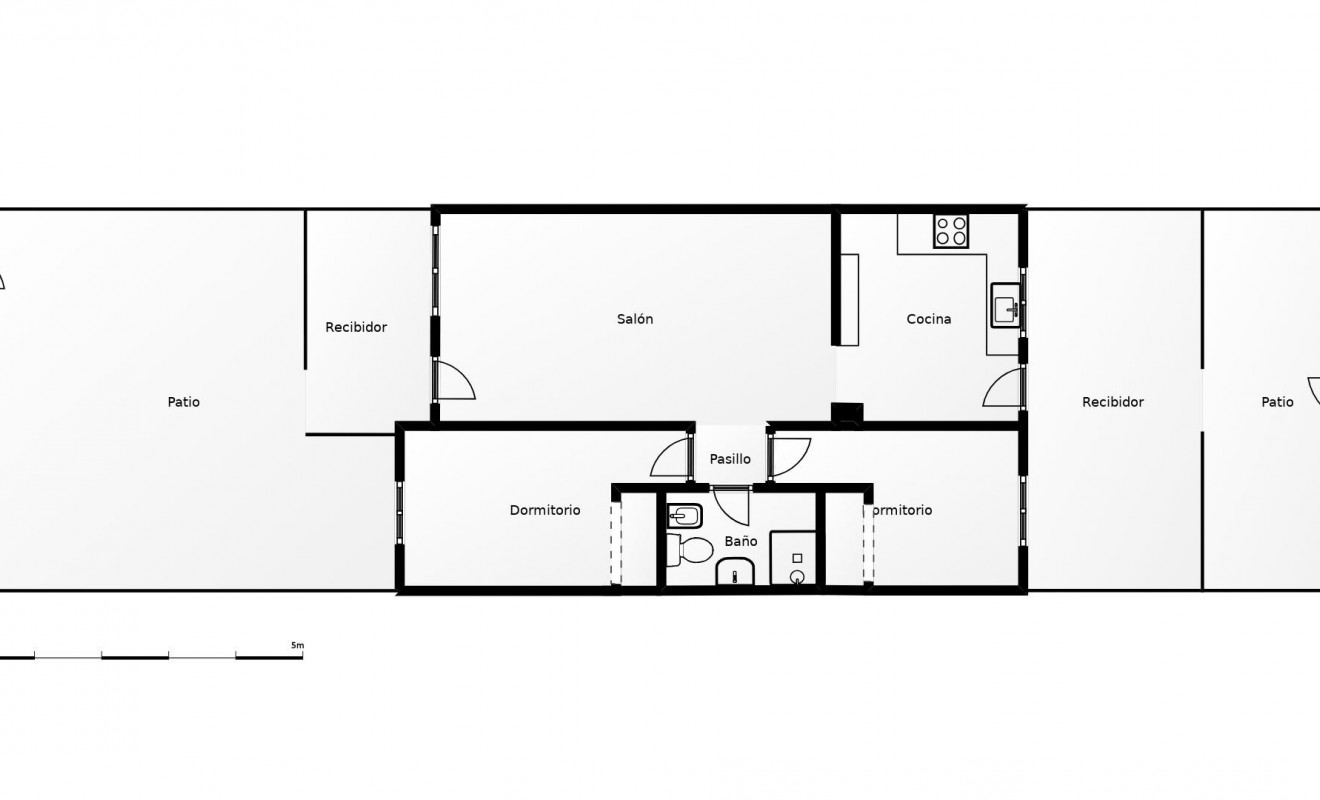
Bungalow de plain-pied dans la zone PAU 26 à Orihuela Costa, un emplacement calme et bien desservi, idéal à la fois comme résidence principale et pour profiter de vacances.~~Le bien dispose d’une double orientation nord et sud, garantissant une excellente ventilation et luminosité tout au long de la journée. À l’avant, un agréable jardin extérieur avec accès direct à la maison permet de profiter de l’air libre ou de créer un espace de détente chaleureux.~~À l’arrière, un grand patio orienté sud permet de profiter pleinement du soleil, avec un accès direct à la piscine communautaire, située dans une résidence bien entretenue et entourée de verdure.~~À l’intérieur, le logement offre un grand salon avec cuisine ouverte, créant un espace fonctionnel et confortable pour le quotidien. Il dispose de deux chambres lumineuses et d’une salle de bain complète, le tout en parfait état et prêt à emménager.~~L’emplacement est excellent, à proximité du réputé Campo de Golf Villamartín, du populaire Zenia Boulevard, ainsi que des supermarchés et autres services à quelques minutes, offrant commodité et qualité de vie toute l’année.~~De plus, la propriété a été louée plusieurs fois en tant que location longue durée, ce qui en fait également une excellente option comme investissement, offrant un potentiel locatif prouvé.~~Une opportunité idéale pour ceux qui recherchent tranquillité, soleil et proximité de tous les services sur la Costa Blanca, avec l’avantage supplémentaire d’un bien avec un historique locatif stable.~~