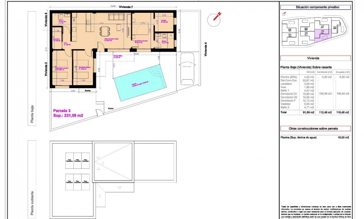
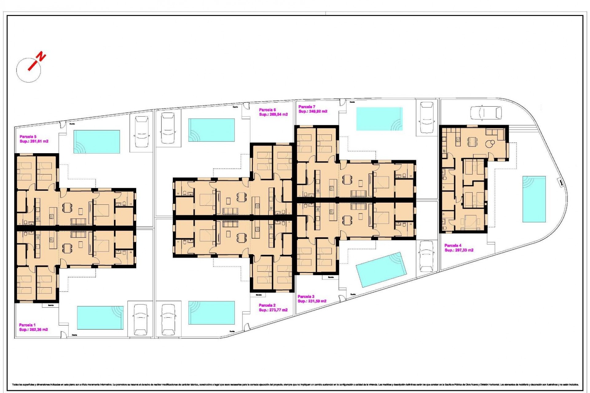
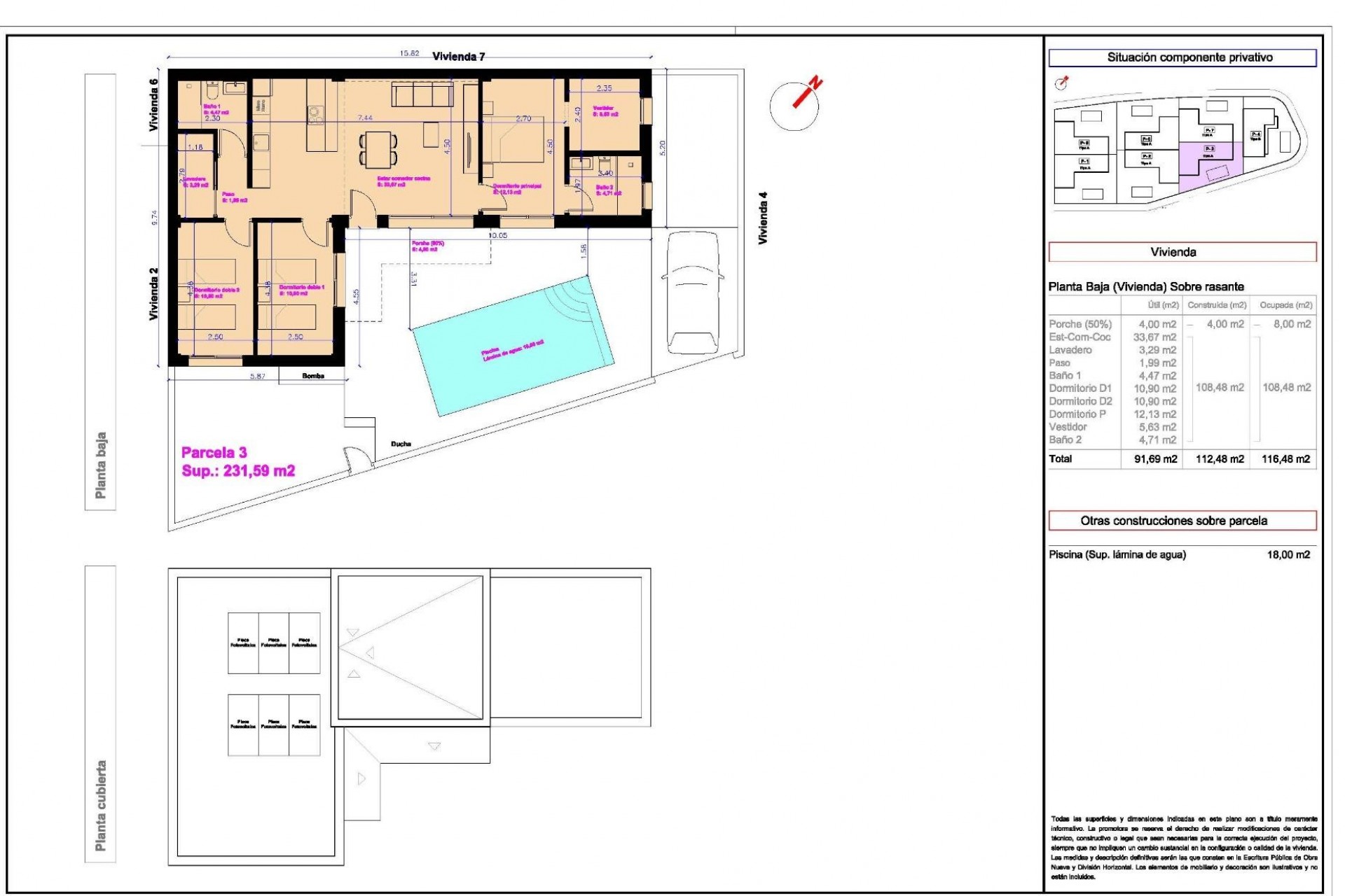
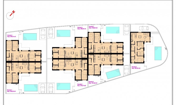
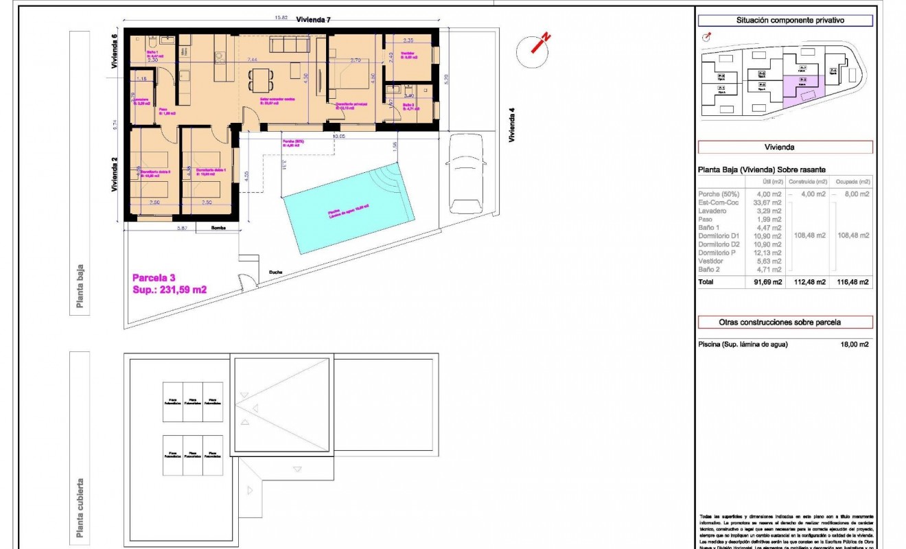
LE STYLE DE VIE MÉDITERRANÉEN SUR UN SEUL NIVEAU Le village de Daya Nueva est la combinaison parfaite entre un style de vie rural tranquille et confortable et les zones côtières animées de la Costa Blanca, à quelques minutes en voiture. Cette promotion de villas semi-indépendantes et indépendantes de construction neuve a été conçue avec une attention particulière aux détails et construite avec un haut niveau de finition. Toutes les villas disposeront de leur propre piscine privée. VOTRE PROPRE ESPACE DE VIE, TOUT SUR UN SEUL NIVEAU Une approche lumineuse, fraîche et moderne a été intégrée dans la conception. Situées dans un petit village au sud de la province d'Alicante. Le village s'appelle Daya Nueva. Villas neuves de plain-pied dans le nouveau quartier de Daya Nueva. À quelques minutes à pied du centre du village. La propriété comprend 3 chambres, 2 salles de bains et une piscine privée de 18 m². Salon/salle à manger avec double hauteur sous plafond, cuisine ouverte, lumière naturelle et possibilité d'aménager un solarium moyennant un supplément. La chambre principale peut être équipée d'un dressing et d'une salle de bains privative. Situé dans un nouveau quartier résidentiel calme, à environ 10 minutes de la plage de La Marina del Pinet et Guardamar del Segura. Accès facile à l'autoroute A-70 et à environ 25 minutes de l'aéroport international d'Alicante.