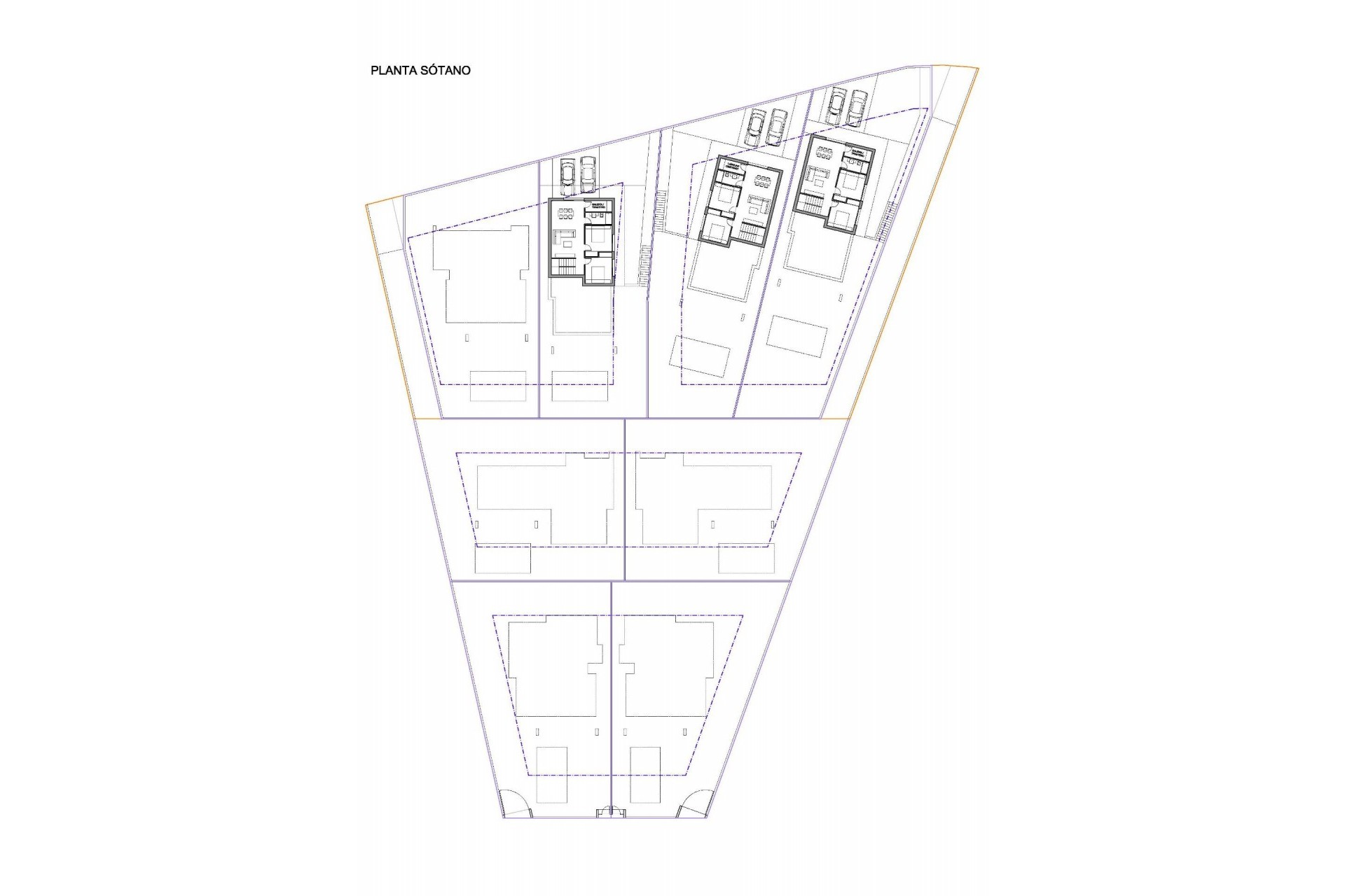
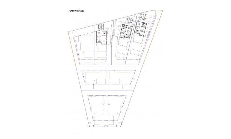
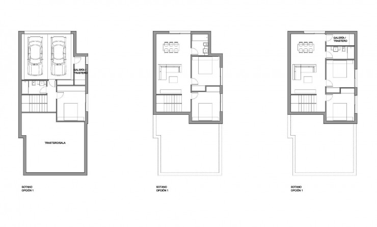
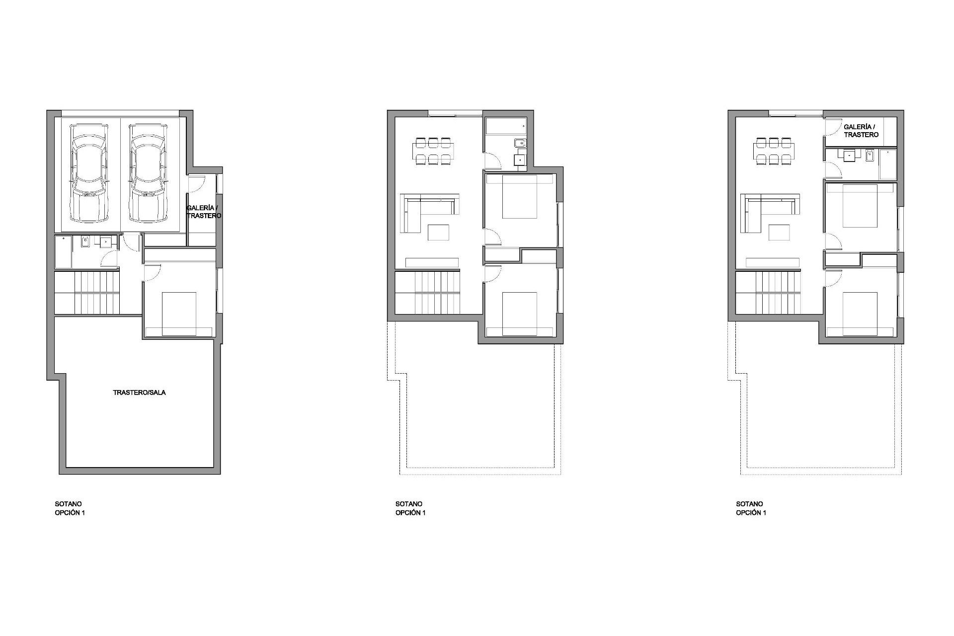
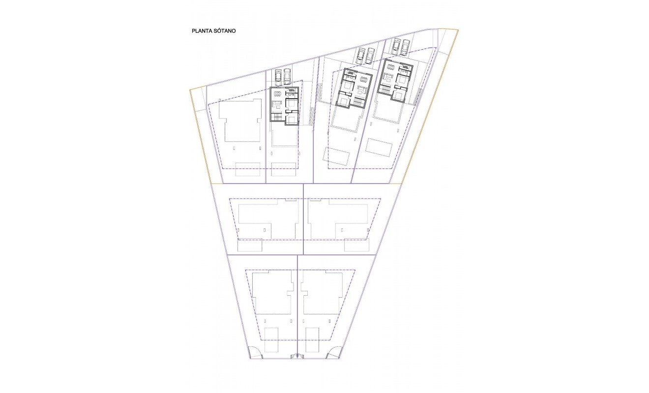
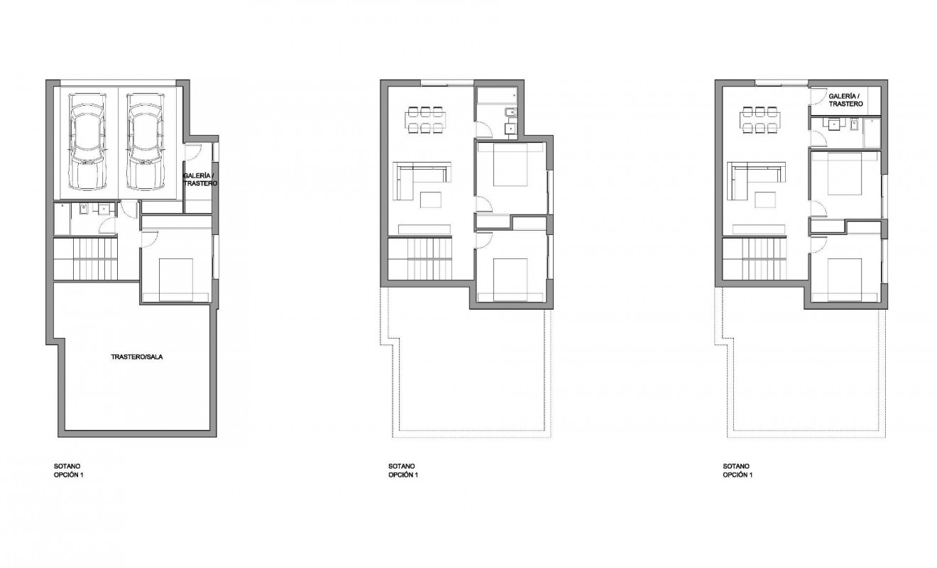
Villas neuves d'un étage avec piscine privée à Torrevieja Villas modernes dans le quartier exclusif de Los Balcones Découvrez ces superbes villas neuves, parfaitement situées dans l'urbanisation Los Balcones de Torrevieja. Conçues pour le confort et l'élégance, ces maisons de plain-pied offrent des intérieurs spacieux, des finitions de haute qualité et une piscine privée, ce qui en fait le choix idéal pour ceux qui recherchent un style de vie méditerranéen moderne. Situées dans un quartier calme et bien desservi, ces villas sont entourées d'un large éventail de services, notamment des restaurants, des bars, des centres commerciaux et des établissements de santé, ce qui garantit leur commodité et une qualité de vie élevée. Conception spacieuse et fonctionnelle Chacune des 8 villas indépendantes est construite sur un généreux terrain de plus de 400 m², offrant ainsi un vaste espace extérieur. Les maisons disposent de 3 chambres spacieuses et 2 salles de bains entièrement équipées. Un grand salon et une salle à manger ouverts, conçus pour favoriser la lumière naturelle et le confort. Une cuisine ouverte moderne, parfaitement intégrée à l'espace de vie. Une piscine privée, parfaite pour se rafraîchir et se divertir. Parking pour deux voitures sur le terrain. Solarium privé avec vue dégagée, idéal pour prendre un bain de soleil et se détendre. Sous-sol disponible en option pour un espace de vie ou de stockage supplémentaire (moyennant un coût supplémentaire). Caractéristiques et finitions de haute qualité Construites avec des matériaux de première qualité et conçues pour un style de vie luxueux, ces villas comprennent : Chauffage par le sol dans les salles de bains, garantissant un confort tout au long de l'année. Un ensemble d'éclairages inclus, améliorant l'ambiance et la fonctionnalité. Une gamme d'options de personnalisation, permettant aux acheteurs d'adapter les finitions à leurs préférences. Une situation privilégiée à proximité des plages et des services Los Balcones est un quartier résidentiel très recherché de Torrevieja, connu pour son environnement paisible tout en étant proche des commodités essentielles. Ces villas bénéficient d'une excellente connectivité avec les principaux sites : Plages de Torrevieja - à seulement 3 km. Aéroport international d'Alicante - 40 km (environ 35 minutes en voiture). Centres commerciaux (La Zenia Boulevard, Habaneras) - 10-15 minutes en voiture. Terrains de golf (Villamartín, Las Ramblas, Campoamor) - 15-20 minutes en voiture. Centre ville de Torrevieja - 3 km. Un excellent investissement et une maison de rêve Avec leur emplacement privilégié, leur design moderne et leurs finitions haut de gamme, ces villas offrent une incroyable opportunité d'investissement, de vacances ou de résidence permanente sur la Costa Blanca. Contactez-nous dès aujourd'hui pour plus d'informations ou pour planifier une visite !