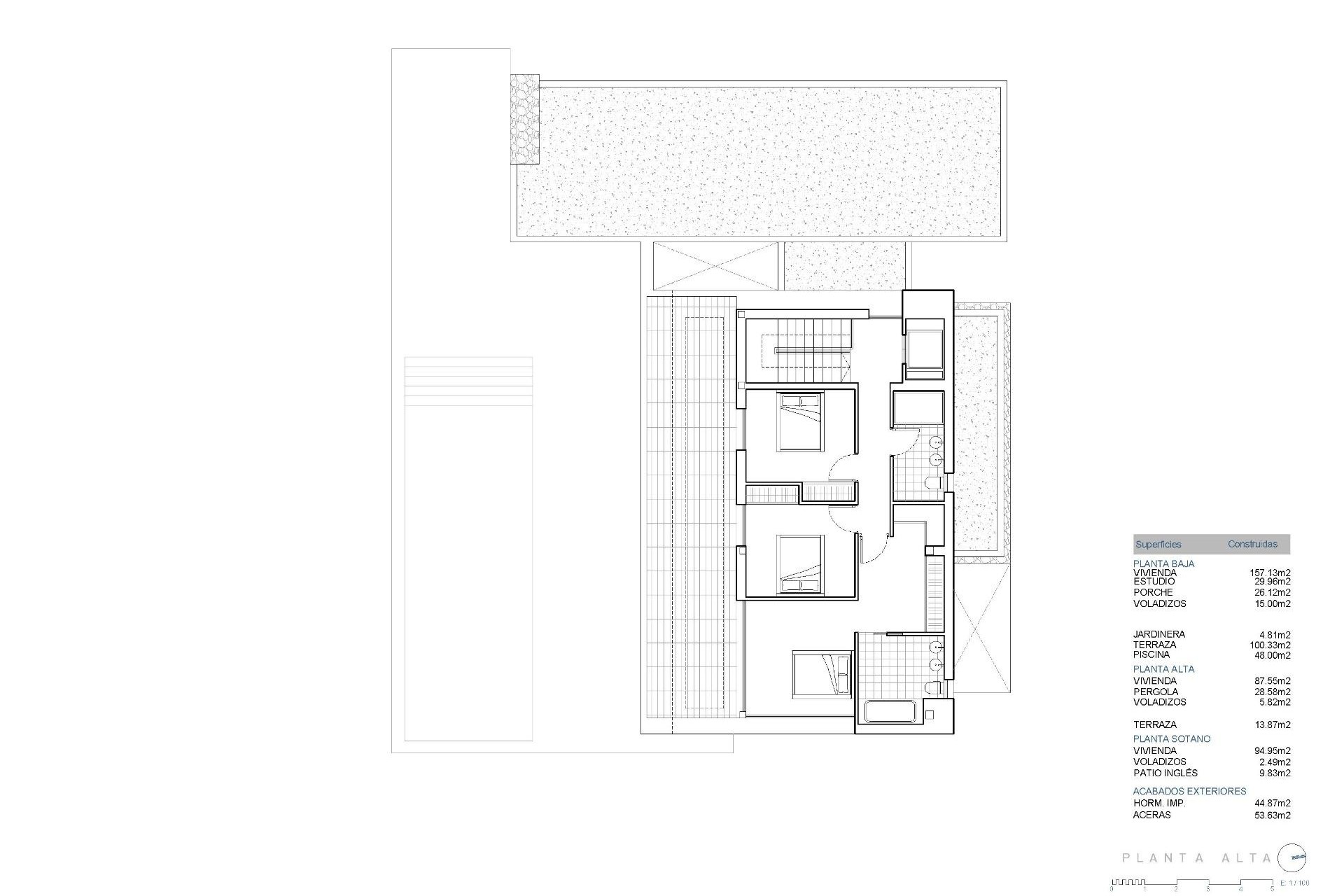
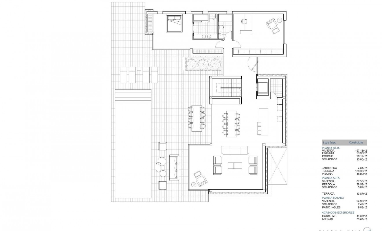
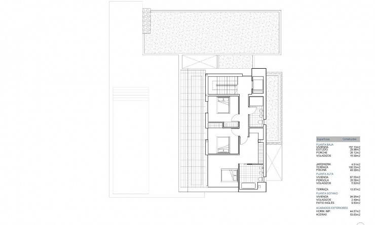
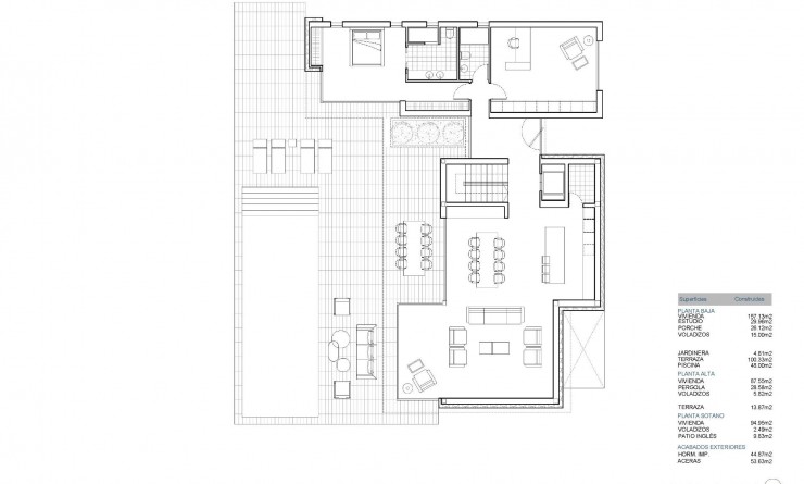
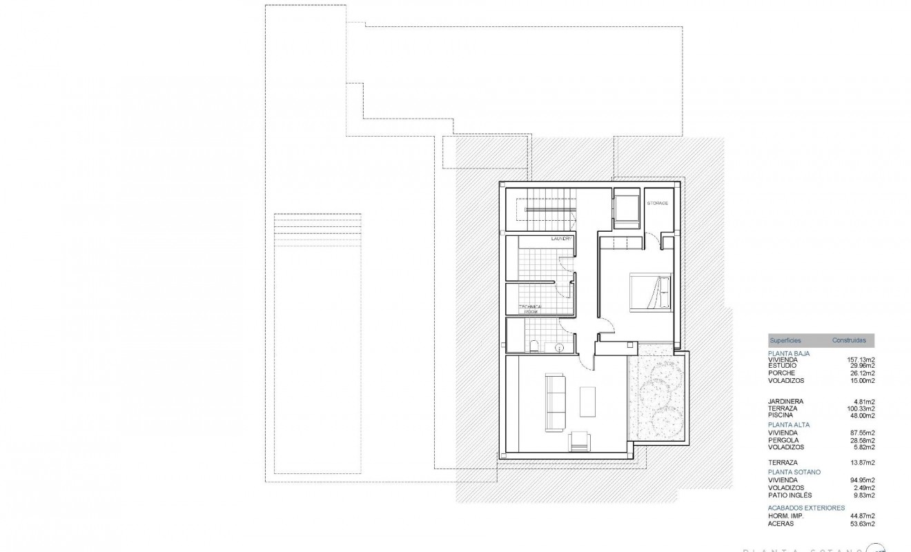
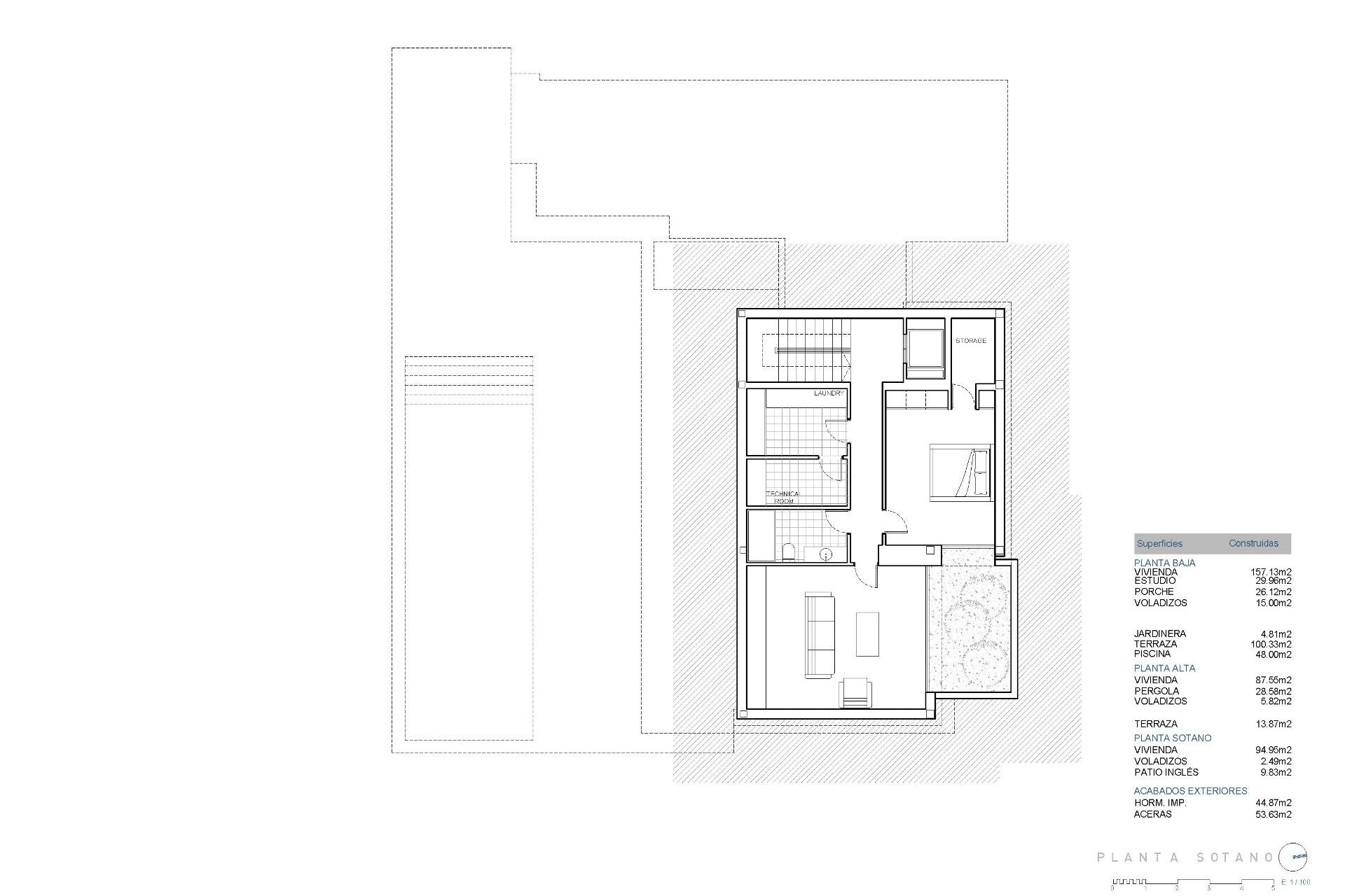
Villa de luxe nouvellement construite à Moraira - à seulement 3 km de la mer Conception moderne avec des caractéristiques haut de gamme Située dans la pittoresque ville côtière de Moraira, cette superbe villa neuve se trouve à seulement 3 km de l'étincelante mer Méditerranée. Dotée d'un design contemporain et fonctionnel, cette maison de deux étages plus un niveau souterrain offre un généreux espace de vie de 395 m². Conçue pour maximiser le confort et la lumière naturelle, la villa allie luxe et praticité dans les moindres détails. Un aménagement spacieux et bien planifié Le rez-de-chaussée est conçu de manière à favoriser la vie sociale, avec de vastes espaces de vie et de repas, une cuisine moderne et une chambre à coucher. À l'étage, les espaces privés comprennent des chambres supplémentaires, chacune offrant des vues à couper le souffle et un confort ultime. Avec 6 chambres et 5 salles de bains, cette villa est parfaite pour les familles nombreuses ou pour ceux qui aiment recevoir des invités. Le sous-sol offre un espace supplémentaire personnalisable, idéal pour une salle de sport, une salle de cinéma ou une cave à vin. Construction de qualité supérieure Cette villa est construite avec des matériaux de haute qualité et une attention particulière aux détails, ce qui garantit une maison durable et élégante : Des carreaux de porcelaine de la prestigieuse marque Saloni. Une porte d'entrée équipée d'une serrure de sécurité à trois boulons pour la tranquillité d'esprit. Verre de sécurité climalit Guardian Sun pour une isolation et une sécurité accrues. Des stores électriques dans toutes les chambres pour plus de confort. Chauffage par le sol avec une pompe à chaleur Mitsubishi pour un confort tout au long de l'année. Systèmes de climatisation Mitsubishi dans tous les espaces de vie et les chambres à coucher avec contrôle de la température. Piscine privée et aménagements extérieurs Profitez d'une luxueuse piscine privée dotée d'un éclairage LED sous-marin, d'un escalier romain et d'une douche extérieure intégrée. L'extérieur de la villa est conçu pour faciliter la vie et préserver l'intimité, avec un portail d'entrée automatique télécommandé et une porte piétonne pour plus de commodité. Situation privilégiée à Moraira Située dans un quartier paisible, la villa est idéalement située à proximité des principales commodités et attractions : Plage de Moraira : Plage de Moraira : 3 km Aéroport d'Alicante : 92 km La Sella Golf Resort : 25 km Centres commerciaux : 5 km Port de Moraira : 4 km Moraira est réputée pour son charme côtier, ses excellents restaurants et sa culture locale dynamique, ce qui en fait un endroit idéal pour s'installer ou investir dans une retraite de vacances. Planifiez votre visite dès aujourd'hui Ne manquez pas cette opportunité de posséder une luxueuse villa dans l'un des endroits les plus recherchés d'Espagne. Contactez-nous dès maintenant pour organiser une visite et faire de cette superbe propriété la vôtre !
Cette information donnée ici est sujette à des erreurs et ne fait partie d'aucun contrat. L'offre peut être modifiée ou retirée sans préavis. Les prix n'incluent pas les coûts d'achat
Abonnez-vous à notre newsletter
© 2026 Real Estate By Kathy · Mentions légales · Privacité · Cookies · Plan du site
Conception & CRM: Mediaelx
Tout d’abord, merci de nous contacter.
Nous avons reçu votre demande concernant la référence du bien:NB-11930. Un de nos agents vous contactera dans les meilleurs délais.
Tout d’abord, merci de nous contacter.
Nous avons reçu une demande de rapport si vous abaissez le prix de la propriété avec la référence: NB-11930
En attendant, jetez un coup d'œil à cette sélection de propriétés similaires qui pourraient vous intéresser: