Aspe · Alicante Villa · Ref. NB-15422

637.000€

Aspe · Alicante Villa · Ref. NB-15422

Les caractéristiques

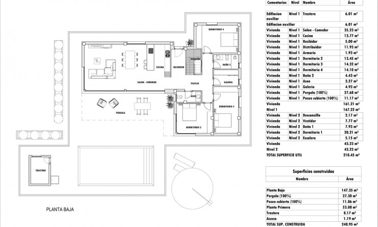
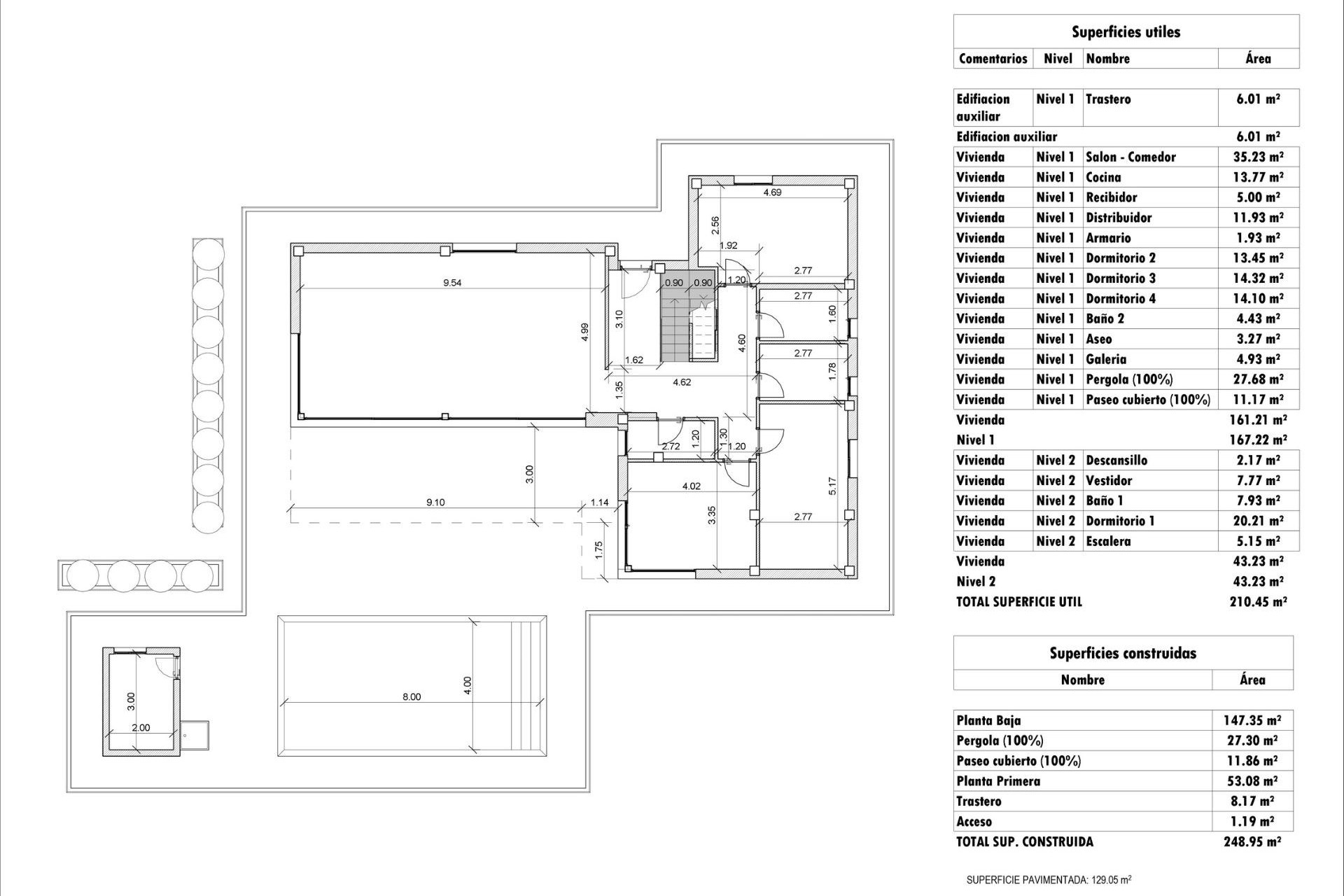
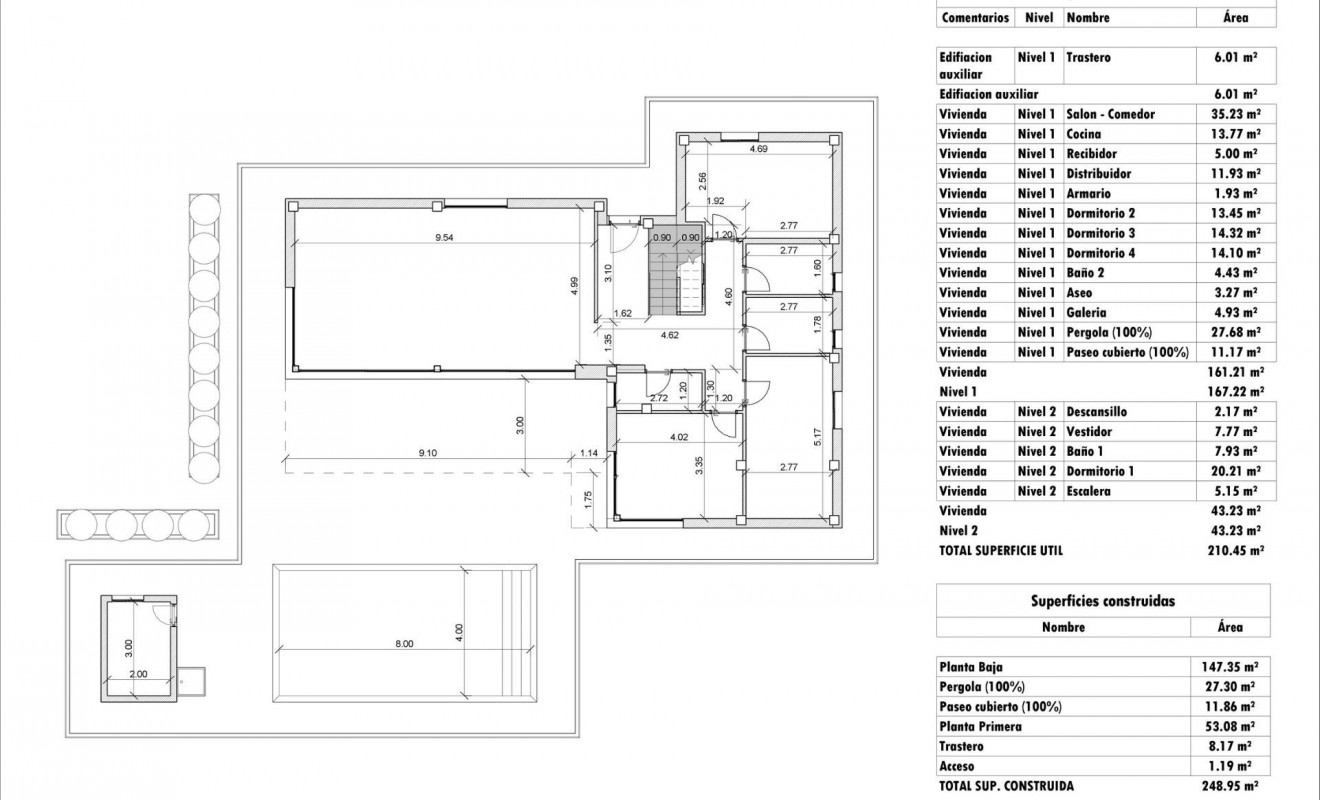
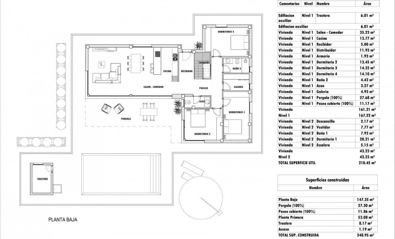
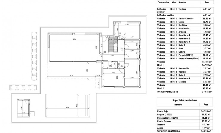
Chambres: 4
Salles de bain: 3
Construit: 248m2
Parcelle: 13.172m2
Piscine: Oui
Jardi
Piscine privée
Gated
Number of Parking Spaces: 1
Near Schools
Air Conditioning: Pre-Installed
Double Bedrooms: 4
Terrace: 38 Msq.
Location: Rural, Mountain
Parking - Space
Beach: 25000 Meters
Useable Build Space: 210 Msq.
Storage / Trastero

La description

Emplacement

Faire une demande

Responsable del tratamiento: , Finalidad del tratamiento: Gestión y control de los servicios ofrecidos a través de la página Web de Servicios inmobiliarios, Envío de información a traves de newsletter y otros, Legitimación: Por consentimiento, Destinatarios: No se cederan los datos, salvo para elaborar contabilidad, Derechos de las personas interesadas: Acceder, rectificar y suprimir los datos, solicitar la portabilidad de los mismos, oponerse altratamiento y solicitar la limitación de éste, Procedencia de los datos: El Propio interesado, Información Adicional: Puede consultarse la información adicional y detallada sobre protección de datos Aquí.

Toutes nos nouvelles Dans vos mains

Abonnez-vous à notre newsletter

WhatsApp