La Nucía · Alicante Villa · Ref. NB-29795

600.000€

La Nucía · Alicante Villa · Ref. NB-29795

Les caractéristiques

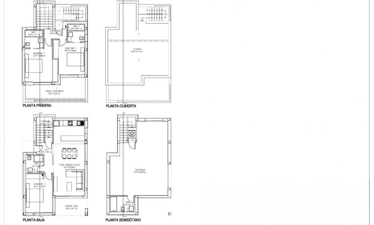
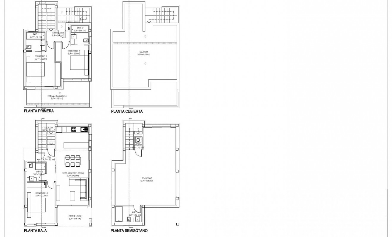
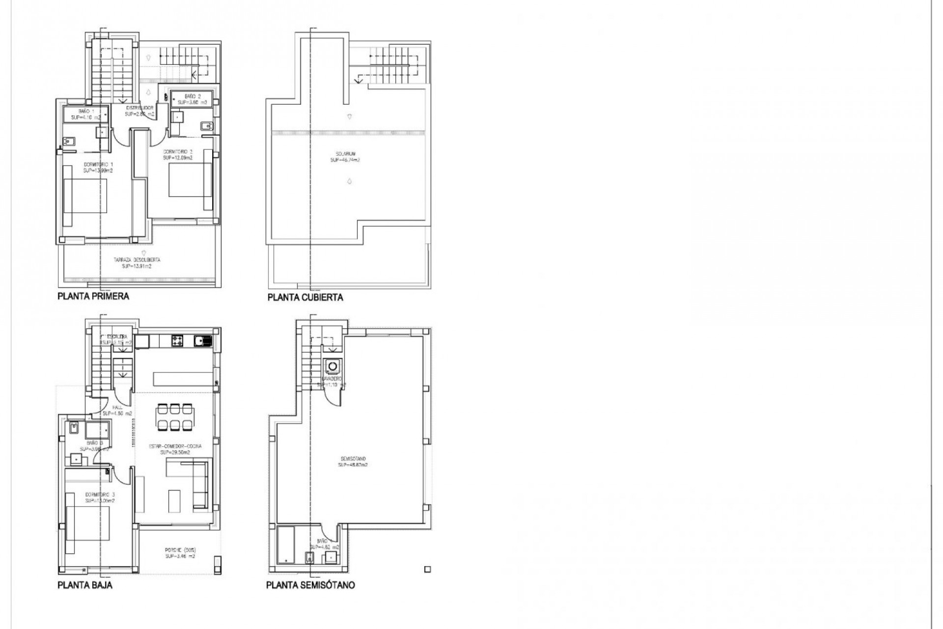
Chambres: 3
Salles de bain: 4
Construit: 141m2
Parcelle: 213m2
Piscine: Oui
Jardi
Piscine privée
Solarium: Yes
Gated
Near Schools
Air Conditioning: Pre-Installed
Double Bedrooms: 3
Terrace: 67 Msq.
Near Commercial Center
Location: Coastal, Mountain, Urbanisation
Under-Build / Basement
Useable Build Space: 120 Msq.
Number of Parking Spaces: 2
Beach: 6000 Meters
Parking - Space - Garage - Double Garage
Storage / Trastero

La description

Emplacement

Faire une demande

Responsable del tratamiento: , Finalidad del tratamiento: Gestión y control de los servicios ofrecidos a través de la página Web de Servicios inmobiliarios, Envío de información a traves de newsletter y otros, Legitimación: Por consentimiento, Destinatarios: No se cederan los datos, salvo para elaborar contabilidad, Derechos de las personas interesadas: Acceder, rectificar y suprimir los datos, solicitar la portabilidad de los mismos, oponerse altratamiento y solicitar la limitación de éste, Procedencia de los datos: El Propio interesado, Información Adicional: Puede consultarse la información adicional y detallada sobre protección de datos Aquí.

Toutes nos nouvelles Dans vos mains

Abonnez-vous à notre newsletter

WhatsApp